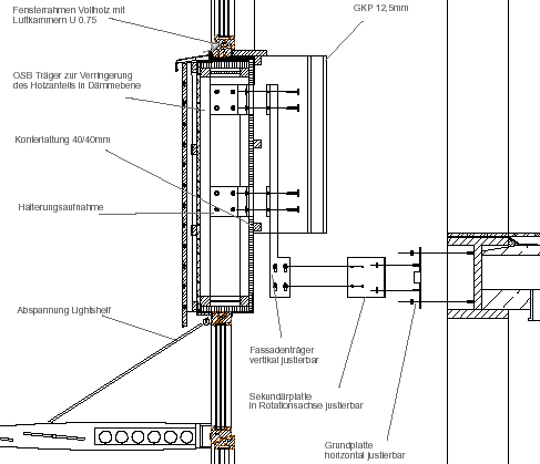
über eine detailierte fassadenkonstruktion wird das erreichen des passivhaus-standards sowie und eine saubere und dichte, leicht zu reparierende konstruktion gewährleistet.